Suntem încântați să vă invităm la Expoziția anuală Expo Apa 2024, ediția cu numărul 24. Evenimentul va avea loc "acasă la noi", în Brașov la Pavilionul ...
14 APRILIE 2020Noi cei de la HTI INTERNAȚIONAL ROMÂNIA SRL vrem să vă trimitem un mesaj de liniște. Suntem extrem de dedicati clienților nostri și proiectelor lor, motiv pentru care ...

Avantaje:
Uponor Aqua Pipe
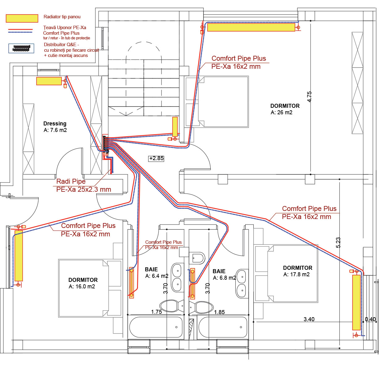
Uponor Comfort Pipe PLUS
Uponor Radi Pipe
Sistemul unic și inovator cu fitinguri brevetat de Uponor, care folosește efectul de revenire și strângere pentru o instalare rapidă și ușoară. Q& E s-a dezvoltat în timp și oferă un sistem complet, flexibil și sigur fiind compatibil doar cu țevile PE-Xa reticulate produse de Uponor.
Avantaje:
GATA IN 25 de SECUNDE!
Qyick and easy este ușor de instalat, eficient economic, sigur și versatil pentru instalații termice și sanitare.
![]() |
![]() |
![]() |
| Introduceți inelul pe țeavă | Expandați cu Uponor M12 | Glisați țeava pe capătul fitingului |
